Découvrez les réalisations de votre architecte Philippe Prevost
Nos projets dans les Pyrénées-Orientales
Chaque projet raconte une histoire : celle d’un lieu, d’une famille et d’un terrain. Nous concevons des maisons neuves, rénovons et étendons des bâtis existants en privilégiant des solutions techniques adaptées au climat méditerranéen : construction traditionnelle, ossature bois et matériaux naturels offrant inertie thermique et confort été/hiver.
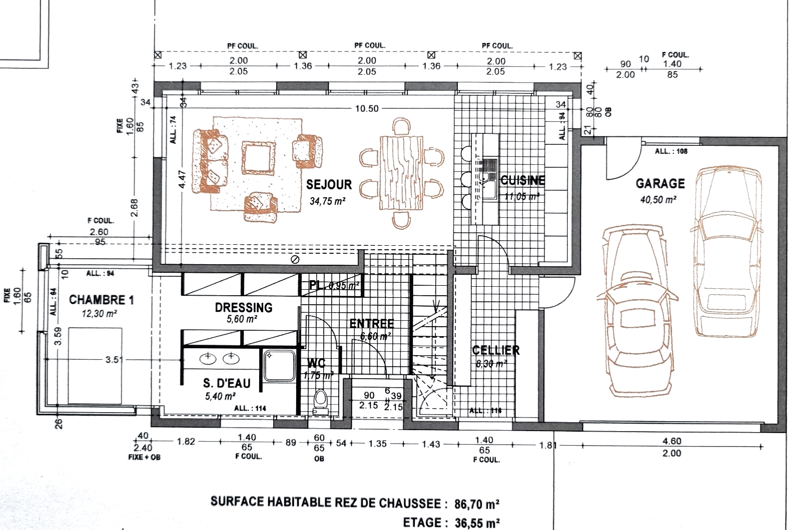
Maison ouverte sur le jardin
- Chantier 2022
- Surface habitable : 107 m²
- Coût des travaux : environ 265 000 TTC.
Contexte : La maison est située sur un terrain très arboré et bordé par un joli mur en pierre recouvert de végétaux.
Sa conception s’est faite autour de la relation à l’extérieur : presque toutes les pièces de la maison étant largement ouvertes sur le jardin et le mur… Les terrasses seront vues comme une prolongation de l’intérieur sur l’extérieur et créeront le lien entre dedans et dehors.
Le rez-de-chaussée est en maçonnerie traditionnelle, à l’exception du volume du séjour fait de bois et de verre, et l’étage est en ossature bois + bardage Douglas.
Le volume principal est plutôt traditionnel, suivant la demande des Bâtiments de France, mais l’ensemble est modernisé par la juxtaposition de volumes bas à toit terrasse et par les surfaces vitrées du RdC.
Un « portique » encadre les baies vitrées du séjour en créant un patio devant les fenêtres de la chambre pour plus d’intimité.
Maison avec vue
- Amélie les bains
- En cours d’étude
- Surface habitable 143 m²
- Coût prévisionnel : 407 000 Euros TTC
Le projet est situé sur un terrain légèrement pentu , dont l’atout principal est la vue sur les montagnes du Vallespir et sur le village typique de Palalda .
La maison est donc conçue pour être orientée vers ces vues qui se trouvent globalement au Sud-Ouest … la
conception des volumes montre plusieurs grands toits disposés en éventails, qui évoquent la volumétrie générale d’un village ancien, et qui s’adaptent bien à la pente légère du terrain …
La maison est accessible par le nord du terrain, par un patio d’entrée qui deviendra une zone fraiche au plein cœur de l’été … Au contraire, les terrasse sud, couvertes pour ne pas créer de surchauffe à l’intérieur de la maison, resteront des zones chaudes très agréables aux demi-saisons … Le cheminement, depuis l’entrée sur la parcelle, jusqu’à la découverte, dans le séjour, de la vue sur les montagnes cadrée par le débord de toiture et les végétaux extérieurs, est inspiré de l’architecture traditionnelle japonaise . La présence de terrasses couvertes d’avant-toits, et de plusieurs patios plantés de végétaux et d’arbustes qui traversent les avant-toits, relie les espaces intérieurs à la nature extérieure …
Le confort de vie projeté pour cette maison est renforçé par l’utilisation de matériaux sains et naturels : structure en brique isolante + enduit à la chaux, isolation en laine de bois, doublages en Fermacell, chauffage aérothermique, VMC double-flux … etc
Maison en terrasses
- Céret
- En cours d’étude
- Surface habitable 161 m²
- Coût prévisionnel : 513 000 Euros TTC
Contexte : Le projet est situé au pied d’une colline boisée, sur un terrain très pentu ( 8,8 m. de dénivelé pour une profondeur
d’environ 31 m. ).
L’enjeu du projet est de construire en s’adaptant à la pente et en limitant le plus possible le terrassement , pour
rester discret et respectueux de l’environnement .
La topographie du terrain impose au projet 3 niveaux , qui se traduisent par un jeu de plusieurs volumes cubiques
décalés suivant la pente du terrain . Les différents volumes sont équipés de toits-terrasses végétalisés qui se
« fondent » dans leur décor de colline boisée …
La mode constructif du projet est mixte : Soubassement en maçonnerie traditionnelle , le long de la pente, en
« escalier » , pour accompagner le terrain naturel et les terrasses du terrain voisin . Les parties en superstructure
sont en ossature bois, couverte d’un enduit à la chaux ( bardage bois interdit dans le règlement d’urbanisme !).
La distribution des pièces est inversée par rapport à la distribution classique . Les pièces de vie principales sont
aménagées tout en haut, pour mieux profiter de la vue et de l’ensoleillement, tout en échappant aux vis-à-vis
gênants de la maison voisine … Les chambres sont au niveau 1 et le garage et l’entrée au RdC …
Les matériaux utilisés sont le plus possible « biosourcés » ( ossature bois, isolation Laine de bois ) même si la réalité
économique du projet a imposé de revenir à certains matériaux plus conventionnels …
Maison à ossasture bois et bardage Douglas
- Livrée en Décembre 2010
- Surface habitable : 116 m²
- Coût : 138 700 € H.T., hors peinture et poêle réservés par le propriétaire
Contexte : Prestations proches de celles du label BBC.
Isolation en ouate de cellulose insufflée dans les parois extérieures à ossature bois (14,5 cm) et en laine de bois dans les rampants (30 cm). Doublages et cloisons Placoplâtre. Orientation sud pour l’apport de chaleur et ouest pour la relation à l’extérieur (vue sur un bel espace boisé). Chauffage par poêle à bois.
Bio-briques et ossature bois
- Livrée en Octobre 2009
- Surface habitable : 170 m²
- Coût : 177 600 € H.T. hors Lot Peinture réservé par le propriétaire
Construite dans un « eco-lotissement » avec quelques prescriptions respectueuses de l’environnement : maçonnerie « bio-briques », récupération de l’eau de pluie, chauffage par aérothermie , bardage bois en Douglas non traité. Conception « bioclimatique » avec une grande quantité de vitrages côté Sud pour emmagasiner les calories gratuites du soleil de l’hiver et des demi-saisons, et en même temps protégés du soleil de l’été par une « casquette ».
Maison à patio
- Livrée en Avril 2012
- Surface habitable : 146 m²
- Coût : 228 500 € H.T. hors Lot Peinture réservé par le propriétaire
Contexte : Construite dans un lotissement, donc avec des vues possibles depuis les voies publiques et les parcelles voisines. Pour s’en protéger, le principe a été de créer, au deuxième plan, un patio sur lequel s’ouvrent les espaces de vie. Cette disposition, complétée par la plantation de quelques écrans végétaux, permettra un relatif isolement visuel. Avec des prestations de qualité, cette maison devrait apporter un grand confort de vie.
- Isolation en ouate de cellulose insufflée dans les parois extérieures en ossature bois (14,5 cm) et dans les rampants (30 cm).
- Doublages et cloisons Fermacell au RdC et placoplâtre à l’étage.
- Façades totalement vitrées sur le Patio, orientées au Sud et à l’Ouest, protégées du soleil de l’été par le débord de façade de l’étage et par un pare-soleil.
- Chauffage au sol et production d’eau chaude par aérothermie.
- VMC double flux.
- Récupération des eaux de pluie.
Maison bois avec chambres d’hôtes
- Livrée en 2019.
- Surface habitable : 164 m²
- Coût : environ 200 000 € TTC, hors chambres d’hôtes. Travaux réalisés par le propriétaire.
Le projet regroupe une maison individuelle et deux chambres d’hôtes, reliées tout en étant indépendantes.
L’ensemble se présente comme un village constitué de plusieurs volumes articulés autour d’une cour centrale par laquelle on accède.
Les différents volumes sont implantés avec un jeu de glissements les uns par rapports aux autres et d’orientations en éventail. Le décalage des volumes permet de créer des patios dans la continuité des espaces intérieurs, avec leurs intimités et leurs zones tranquilles à l’abri des vues et du soleil.
La disposition en éventail permet d’ouvrir la vue, depuis l’espace intérieur, vers la campagne environnante et oriente les chambres d’hôtes vers un autre horizon…
La construction est à ossature bois et bardage Douglas.
Maison mixte
- Etude en cours (les croquis présentés correspondent à l’étude préliminaire – les plans et façades montrent une version du projet plus récente)
- Surface habitable : 143 m²
- Estimation des travaux : environ 190 000 € H.T.
Contexte : Maison de plain-pied, d’allure contemporaine, avec des volumes réduits à leur plus simple expression.
Elle est basse et discrète face à un espace boisé remarquable, pour s’insérer le mieux possible dans son environnement.
Sa façade Sud, entièrement vitrée et protégée du soleil de l’été par une large « casquette », s’ouvre sur l’environnement boisé proche et sur le paysage lointain et permet une vraie relation entre intérieur et extérieur.
Le plan met en évidence un cheminement presque « spirituel » de l’entrée de la maison vers le Séjour, magnifié par sa façade vitrée qui met en relation avec la nature.



















































